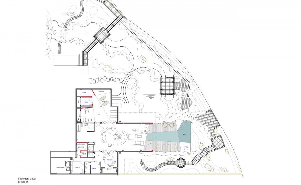
Type: Residential
Location: Suzhou, China
Client: Private Client
Designer: V10 – Luca Rizzi Brignoli, Shanghai / Studio Ventimiglia, Milan
Year: 2016
A project for an exclusive villa in Suzhou, developed on three floors, for a total area of approximately 1.400 square meters.












